おかげさまで、このマンションは
完売いたしました。

販売中の投資向けマンション コンシェリアの一覧は こちら

QUALITYクオリティ

STRUCTURE & EQUIPMENT きめ細やかに配慮した基本構造。

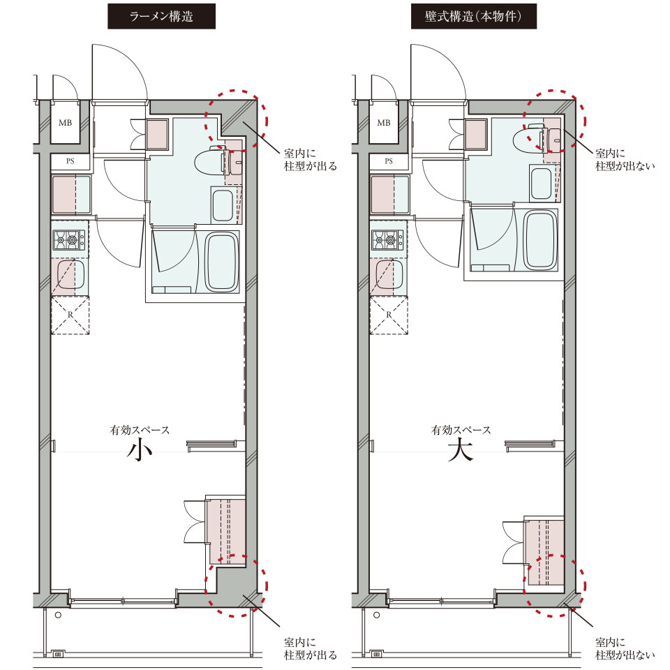
壁式構造

柱と梁で建物を支えるラーメン構造に対し、「壁」という「面」で建物を支える構造を「壁式構造」といい、主に低層の建物に採用される工法です。柱や梁型が室内に出ないため、室内空間を有効に使うことができます。

  • 天井面には設備配管のための下がり天井が通ります。また構造上、一部の住戸には梁型が出る場合があります。
地盤調査を反映した耐震性に優れた基礎構造

□地盤:地震に強い建物づくりには、強固な地層を支持地盤とすることが重要です。本物件では、地下約32m付近の地盤を建物を支える支持地盤としています。
□基礎構造:本物件では、独立基礎、その下に羽根付き鋼管杭38本を打ち込み、支持層で支持しています。

地盤調査

本物件では、地盤の許容支持力を正確に割り出すために、事前に敷地調査と、標準貫入試験などの地盤調査を実施しています。

コンクリート強度

設計基準圧縮強度24N/m㎡〜30N/m㎡の高い強度を持つコンクリートを使用しています。

戸境壁

隣接住戸の生活音の伝わりの軽減やプライバシーに配慮して、約180mm・200mm厚のコンクリート戸境壁を採用しています。

断熱材

屋上や壁、住戸最下階の床裏などには断熱材を入れ、建物全体を包み込むように断熱対策を施すことで冷暖房効果を高めます。

二重床工法・二重天井

スラブの厚さを約180mm以上とし、遮音性に優れた⊿LL(Ⅱ)-3等級相当の置床システムを採用。スラブ面と床面の間には、防振アジャスターを配し、スプーンや食器等の落下音(軽量床衝撃音)が階下へ漏れるのを軽減しています。また、二重天井とすることで、将来のリフォームやメンテナンスへの対応に配慮しています。

住宅瑕疵担保責任保険

当社の住宅は消費者を保護する住宅瑕疵担保履行法に対応した保険付き住宅です。

SAFETY & SECURITY 安心と安全を支える先進の技術。

非接触キーをかざすだけで、オートロックを解錠することのできるオートロックシステムを採用。宅配ボックスの操作とも連携、わずらわしいキー操作が軽減されます。 来訪者には住戸内のインターホンにてオートロックを解錠できます。
24時間対応宅配ボックス

非接触キーをかざすだけで宅配物の受け取り操作が可能な宅配ボックスを採用。配達の際、業者と直接顔を合わせることなく荷物の受け渡しができるため防犯にも有効です。

ハンズフリーカラーモニター付インターホン

来訪者をカラーモニターで確認でき、ボタン操作で簡単に会話可能な受話器のないハンズフリータイプのインターホンを採用しています。また、万一の際、インターホンの非常ボタンを押すと、異常発報が管理室を経由し、警備会社に自動通報されます。

随所に防犯カメラを設置

敷地および建物内に7台(エレベーター内含む)の防犯カメラを設置し、その画像をリアルタイムで管理室のモニターに映しだすと同時に記録します。

24時間365日対応のALSOK警備システム

ALSOKと提携したセキュリティシステムを導入しました。マンション共用部の火災警報や設備異常はもちろん、各住戸の火災警報や非常警報など、様々な異常を機械信号で受信し、場合によって現場へ急行するとともに、必要に応じて警察や消防に通報します。24時間365日体制で快適なマンションライフをサポートします。

モニター付エレベーター

エレベーターには内部を撮影する防犯カメラを設置しました。撮影された映像はリアルタイムで1階のモニターに映しだされます。

プッシュプルハンドル・ダブルロック

玄関ドアは簡単に開閉できるプッシュプルハンドルを採用。また、防犯性の高いダブルロックとし、安全面に配慮しています。

内廊下(1階のみ)

1階共用廊下は内廊下設計を採用することで外からの視線を遮りプライバシーを確保。床は、落ち着いた色調の石目調長尺塩ビシート仕上げとし、清掃性にも配慮しています。

MULTI MEDIA 快適な暮らしをサポートするマルチメディア環境

Wi-Fi一体型マルチメディアコンセント

Wi-Fi一体型のマルチメディアコンセントを各住戸1箇所設置しています。テレビ、インターネット用LANポート、Wi-Fiアクセスポイント、コンセントが一つのプレートに納まっているため見た目もすっきりします。

24時間常時接続のインターネットシステム

ご入居のその日より最大1Gbps※1(ベストエフォートタイプ)の高速回線による24時間インターネットをご利用いただけます。

衛星放送受信システム

映画、スポーツ、音楽、ニュースなどお好みの番組を高音質・高画質で視聴可能な4K対応受信アンテナを屋上に設置しています。

  • 専用チューナー、加入料、視聴料は別途必要となります。
  • オプション契約専用機器の購入、リース等の申込みには別途手続き、費用が必要です。

SERVICE

24時間ゴミ出し可

敷地内に24時間ゴミ出し可能なスペースをご用意。生活リズムを変えることなく、いつでもご利用いただけます。

  • ゴミは分別収集となります。
  • 利用方法は管理規約に準じます。

クレアスレント24サポート

日常生活で起こりえる不具合に24時間365日緊急受付サポート

緊急受付サポートサービス

水道・電気・ガス・ガラスのトラブル、鍵の開錠といったもしもの時の緊急受付サポートです。

 
  • 安心・快適サポートサービス

    引越無料見積もりサービス、家具家電レンタルサービス、不用品回収サービスにも対応。

  • 掲載のイラストは概念図です。
  • 掲載の写真は現地を撮影(2025年3月)したものです。一部メーカーの参考写真となります。詳しくは係員にお尋ねください。

CONTACT

資料請求・見学予約 受付中

資料請求・ご質問はお電話でも承ります。

0120-375-558

受付時間
10:00~18:00(土日祝も含む)